Châssis fixe coupe-feu - MB-118 EI.

MB118EI
MB118-EI Coupe 3D

Coupe 3D

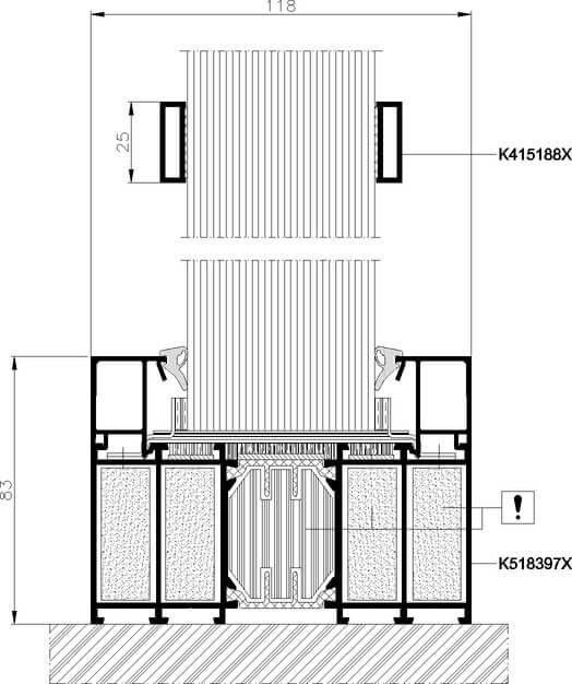
MB118-EI Coupe profil

Coupe profil

  • MB118-EI Coupe 3D

    Coupe 3D

  • MB118-EI Coupe profil

    Coupe profil

MB118-EI Représentation

Le Système MB-118 EI permet la construction de cloisons fixes classées EI 120 avec la possibilité d’intégrer des portes de la série MB-78 EI (classée EI 60), et aussi d'assembler du vitrage collé bord à bord.

Description et caractéristiques :
  • Profilé Aluminium avec rupture de pont thermique de 34mm, épaisseur 118mm, série à 5 chambres.
  • Inserts dans les profilés de matériaux ininflammables et bandes intumescentes sur la périphérie de ceux-ci.
  • Parcloses Aluminium adaptées à l’épaisseur des vitrages.
  • Accessoires Acier pour protection et maintien du verre en cas d’incendie.
Remplissage :
  • Utilisation de tous types de vitrage simple, double, triple et panneaux résistants au feu et classés EI120. Epaisseur de 31mm à 84mm.
Finition :
  • Anodisé (naturel, or, bronze, noire).
  • Thermolaqué selon la gamme RAL, structuré, métallisée ou fine structure.
  • Suivant votre degré de finition, de votre code poudre, d’une peinture liquide, d’un traitement spécial de coloration nous pouvons répondre à votre demande.
  • Traitement de surface anti-corrosif adapté au milieu chloré ou salin.
Support et mise en oeuvre :
  • Pose dans cloisons légères, voile béton, béton cellulaire et maçonnerie.
  • Fixation par pattes ou par vis auto-perforantes.
  • Périphérique, bourrage de laine minérale.
  • Couvre joints ou plats de finitions en Aluminium.
  • Joint de silicone neutre.
Technique :

Dimension mini et maxi, épaisseur profil, et coupe technique veuillez télécharger notre fiche produit.

Classes Résistances
Résistance au feu
EI120
EN 13501-2
Étanchéité à l'air
Classe 4
PN-EN 12152-2004
Résistance à l'eau
Classe RE 750
PN-EN 12154-2004
Affaiblissement acoustique
Acoustique
45 dB (val. Rw)
Déperdition thermique
Uw
< 0.9 W/(m²k)

Agréations
ITB
1036/18/R368NZP


Futurium sprl

Rue de lonnoux 5
6880 Bertrix (Belgique)

Numéro d'entreprise : BE-0723.629.502

siège social futurium

 

 

 

 

 mobile bleu   +352 661.119.236
mail bleu  Cette adresse e-mail est protégée contre les robots spammeurs. Vous devez activer le JavaScript pour la visualiser.

Newsletters

Veuillez activer le javascript sur cette page pour pouvoir valider le formulaire


Copyright © Futurium - 2019